CAD drawings of housing apartment section plan and elevation autocad file
Description
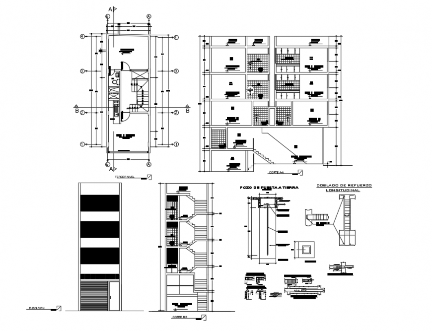
CAD drawings of housing apartment section plan and elevation autocad file that shows work plan elevation and section drawings details of the house along with room dimension details and furniture layout installation details floor level details room details of drawing room bedroom kitchen and dining area sanitary toilet and bathroom details included in this autocad drawings.
Uploaded by:
Eiz
Luna

